Roxborough Colorado Mountain Retreat

  • Transitional mountain ranch home in the foothills of Roxborough.  4 bedrooms, 5 baths, 4420 sqft

About this Project

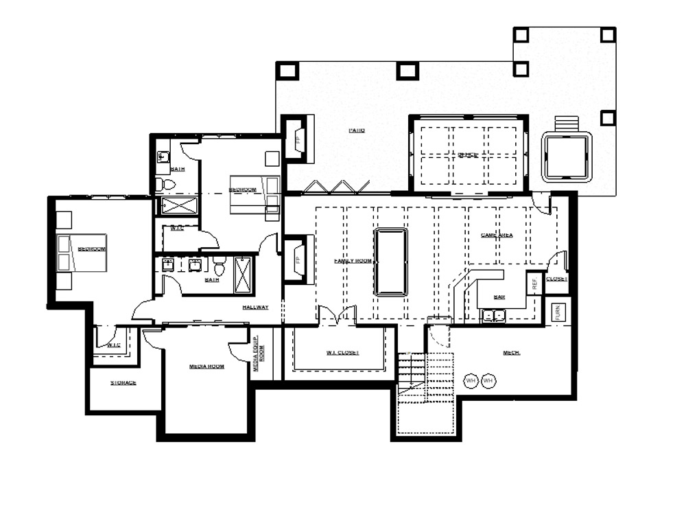
This traditional Colorado mountain home will be a wonderful place for the owners to retire to and enjoy their grandchildren nearby.  With a long driveway that winds up to the front entrance, you feel like you are in a secluded mountain retreat.  Timber beams inside and out bring that Colorado mountain feel inside without being too rustic.  With five fireplaces you will never be wanting for a cozy place to relax, whether it be in the vaulted great room, the master suite or outside on the covered deck or patio.  The firepit and hot tub provide additional areas for entertaining and relaxing which I’m sure their entire family will enjoy for many years!

    Contact Us

    11001 W 120th Ave, Suite 400 Broomfield, CO 80021

    720-263-4949

    info@blueskycustomhome.com