Ravenna Colorado Ranch

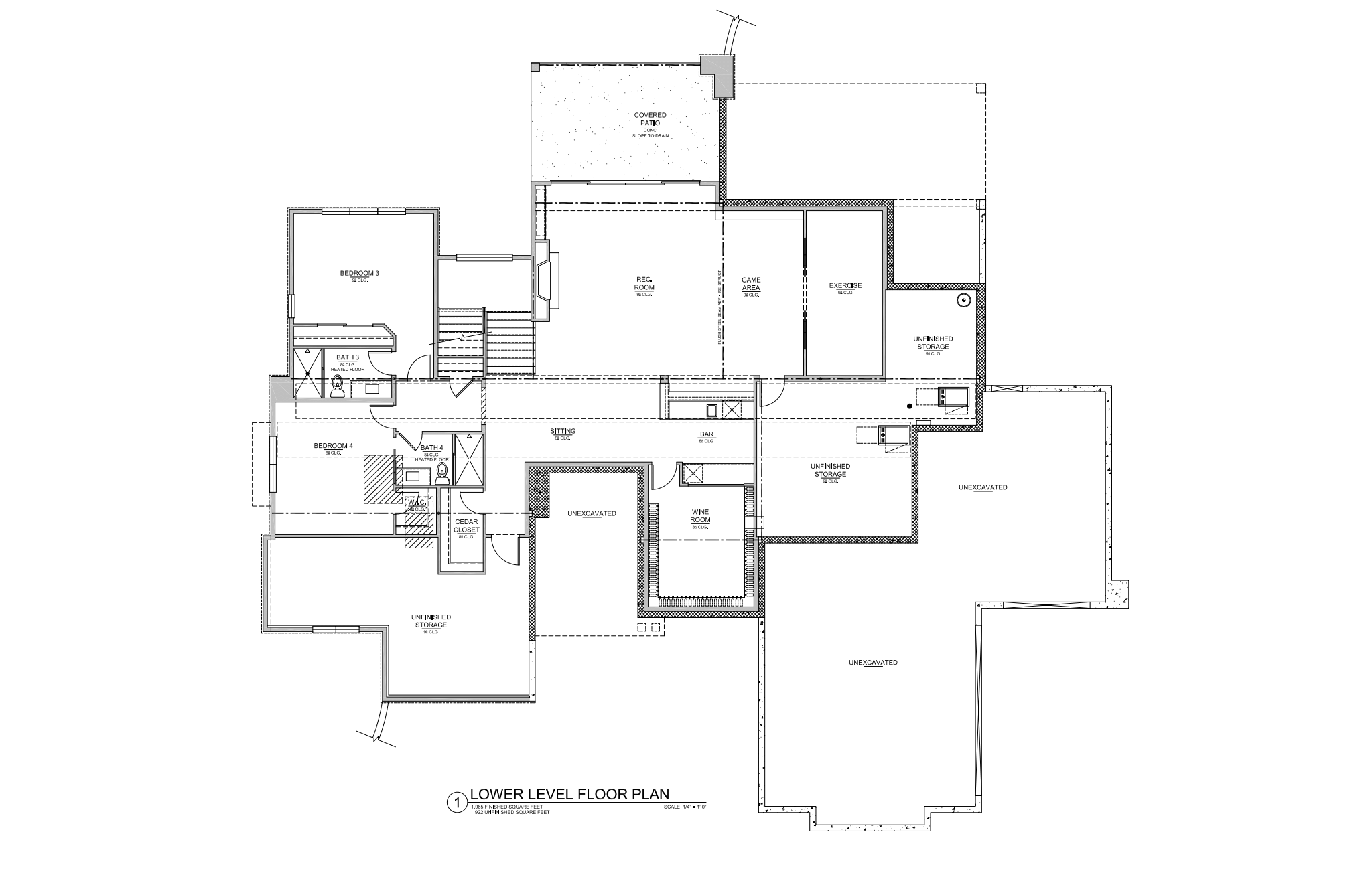
Nestled between Ravenna golf course and Pike National Forest, this custom one-story home was built for enjoying the great Colorado outdoors. Its modern wood, stone, and stucco exterior is eye-catching, yet blends in with its beautiful natural surroundings. Abundant windows on the main level invite the outdoors in, filling the owner’s retreat, great room, and kitchen with natural light. The walk-out finished basement features a wine room, exercise room, and game room, and opens to an expansive outdoor living area anchored by a fire pit.

Contact Us

11001 W 120th Ave, Suite 400 Broomfield, CO 80021

720-263-4949

info@blueskycustomhome.com