Louisville Craftsman

Just under 3900 square feet, this two-story classic craftsman in Louisville is going to be a young family’s forever home. 

About this Project

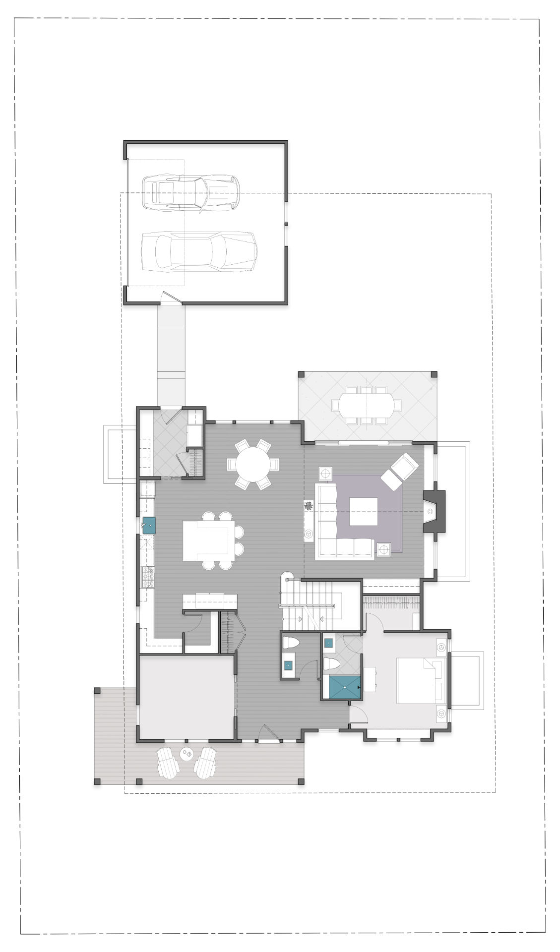
 Just under 3900 square feet, this two-story classic craftsman in Louisville is going to be a young family’s forever home.  The craftsman character is shown with the columns out front and stone accents.  With 5 bedrooms and 4 ½ baths the family will be able to spread out while enjoying the spacious entertaining areas in the kitchen and great room on the main floor and rec room in the basement.  The multiple patios, front porch and second story deck allows them to bring the outside in and increase their 3 season living space.  The five piece spa like master bath, two fireplaces and gourmet kitchen will make the owners never want to leave their home.

Contact Us

11001 W 120th Ave, Suite 400 Broomfield, CO 80021

720-263-4949

info@blueskycustomhome.com